overview
address
- Country: Colombia
- Province / State: Bogotá
feature
travel time
FromAK 15 - Cl 91, Chapinero, Bogotá, Colombia
virtual tour
mortgage calculator
Contact
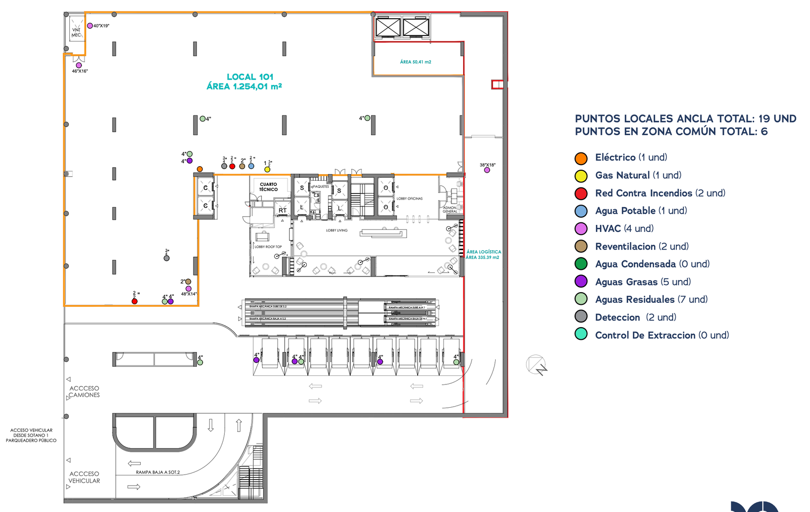
Local S101 en XO91
4.70 metros.
1.254,01 metros cuadrados (m²).
ESTRUCTURA
El piso cuenta con placa estructural, viguetas en concreto
a la vista, sin afinado de piso, ni muros divisorios.
Carga total de 1.302 T/M²
PUNTOS CERO DISPONIBLES
1 Puntos Electricos
2 Puntos De Reventilacion 3″
1 Puntos De Gas Natural 1 1/2″
5 Puntos De Aguas Grasas 4″
2 Puntos Red Contra Incendios 2″
7 Puntos Aguas Residuales 2″
1 Puntos Agua Potable 1″
2 Puntos De Deteccion 3/4″
4 Puntos HVAC 34″X14″






