overview
Size
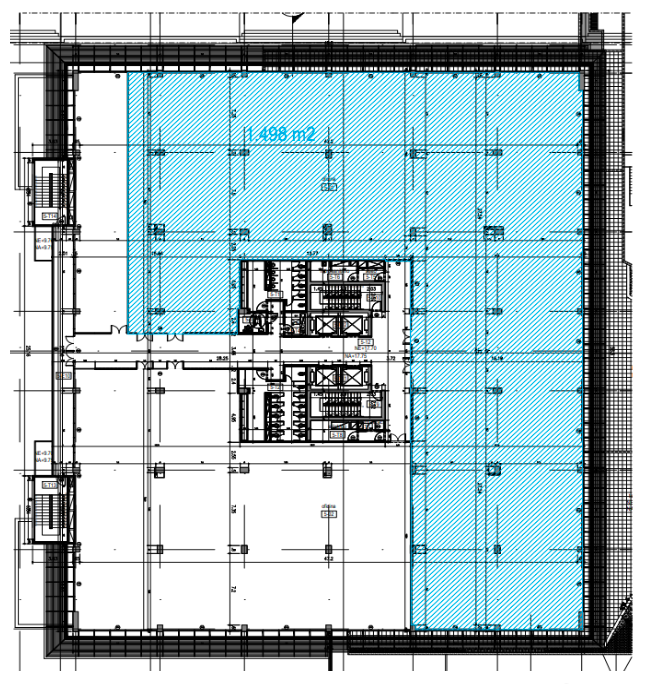
1.498 m2
address
Address:
Cra. 106 #15A-25, Bogotá, Colombia
- Country: Colombia
- Province / State: Bogotá
- City / Town: Bogotá
feature
travel time
FromCra. 106 #15A-25, Bogotá, Colombia
Driving
Transit
Walking
Cycling
virtual tour
mortgage calculator
Contact
Piso completo hasta 1.498 m² en ZF Towers, ideal para empresas de gran formato que buscan consolidar su operación en la Zona Franca de Bogotá, con certificación LEED Gold y excelente conectividad empresarial.








